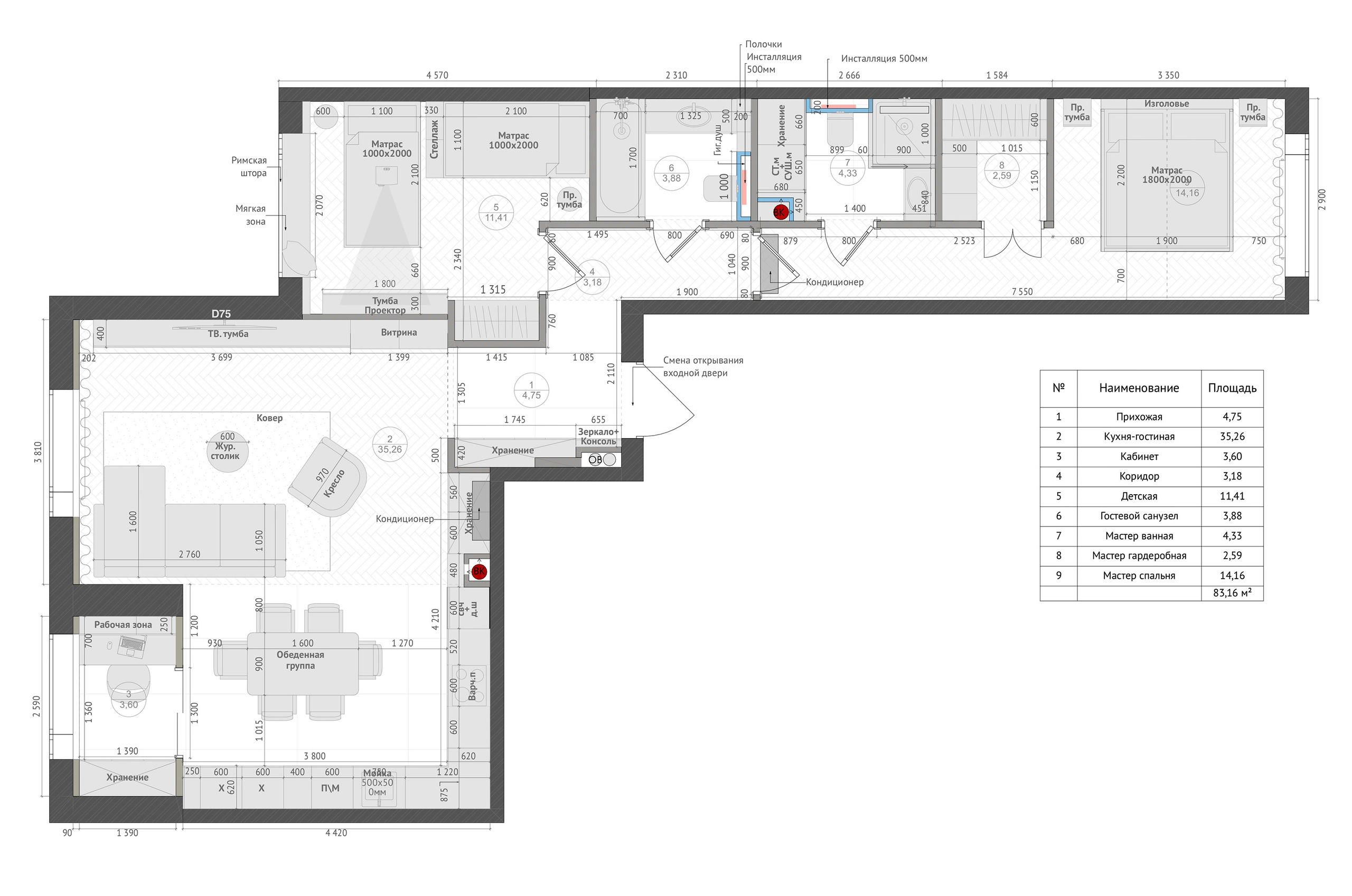
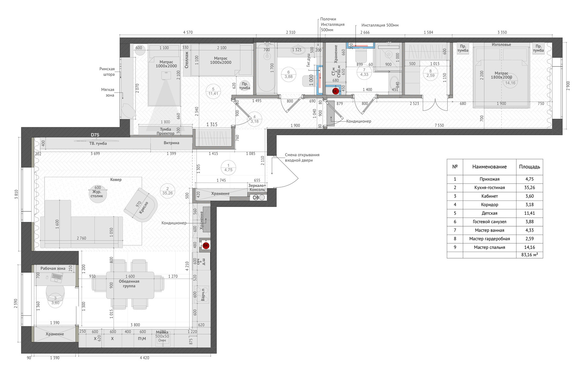
Проект интерьера квартиры площадью 84 м² с Г-образной планировкой, спроектированный для комфортного проживания большой семьи.
Пространство логично зонировано: просторная часть кухни-гостиной создана для времяпрепровождения в кругу всей семьи, тогда как приватный блок включает спальни и обеспечивает уединение и спокойствие.
Стилистика проекта выдержана в современной классике — сдержанной, актуальной и вне времени.
Классические пропорции и архитектурные элементы здесь сочетаются с современными материалами, лаконичной мебелью и продуманными световыми сценариями.

















































