Главная
Портфолио
Истории
Услуги
Контакты
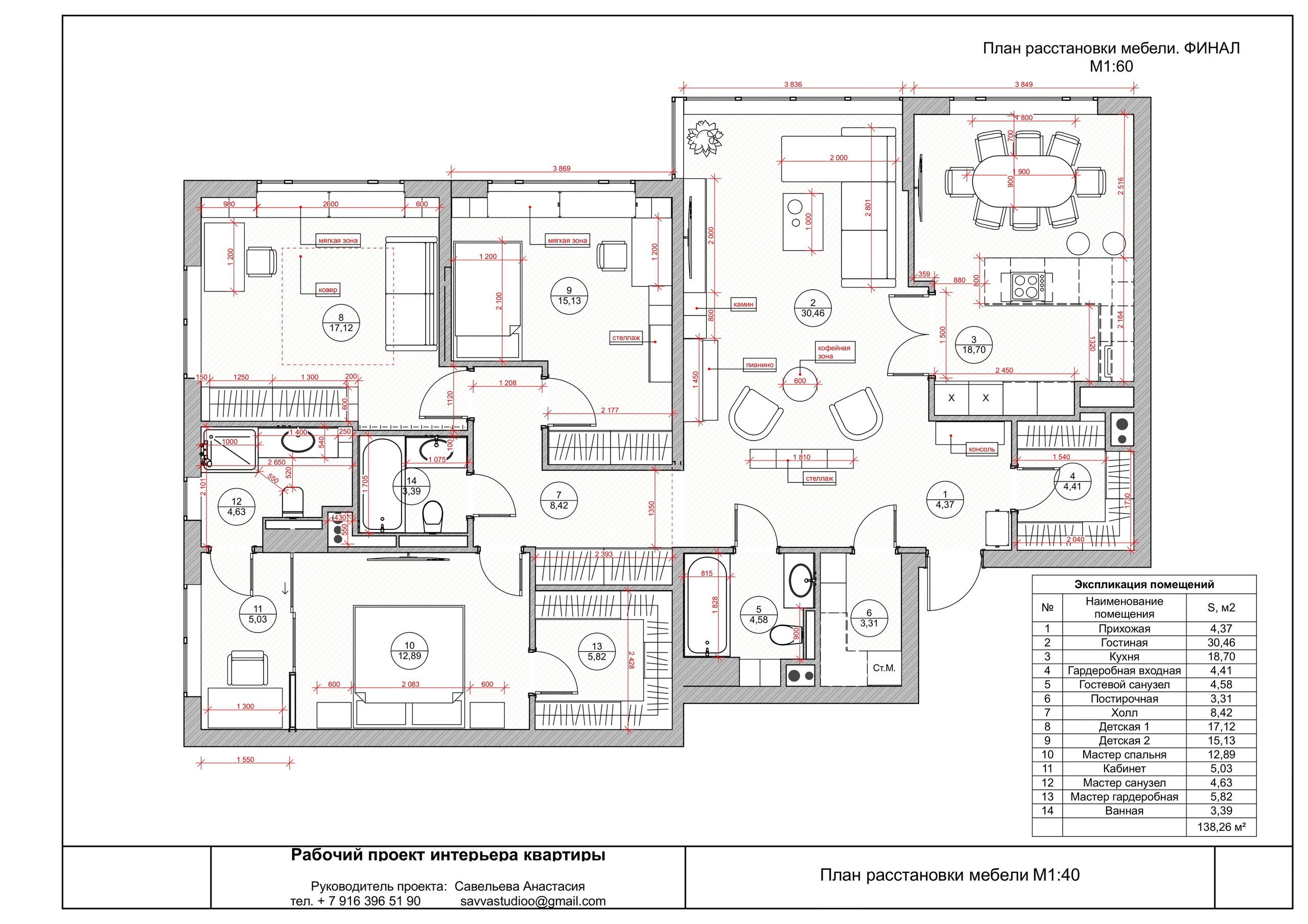
ЖК Событие 140 кв. м. 8 комнат
Портфолио
г. Сочи. Проект вторичного жилья
ЖК Wellton
ЖК Зиларт. Квартира 120 м. кв.
Сердце Столицы. Компактная квартира для сдачи в аренду
Концептуальные проекты
ЖК Режиссер HC-Classic
ЖК Режиссер QW-4
ЖК Режиссер P-54
ЖК Режиссер К5С3
ЖК Режиссер К2 С4
ЖК CAPITAL TOWERS
ЖК Сколково Парк
ЖК Режиссер К2 С3
На сайте используются файлы cookie. Продолжая просмотр сайта, вы разрешаете их использование.
Понятно