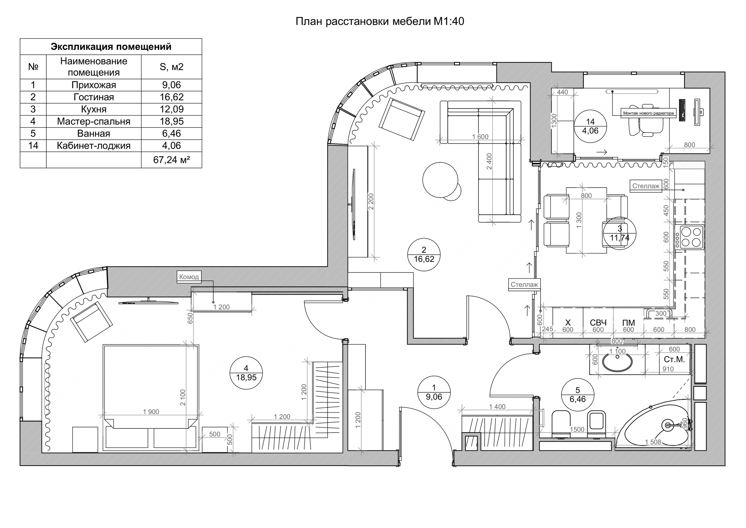
Дизайн-проект квартиры площадью 70 м², для молодой пары.
Пространство каждой комнаты продумано до мелочей- здесь легко отдыхать, работать, встречать гостей и проводить время уютными вечерами.
Дизайн-проект квартиры площадью 70 м², для молодой пары.
Пространство каждой комнаты продумано до мелочей- здесь легко отдыхать, работать, встречать гостей и проводить время уютными вечерами.