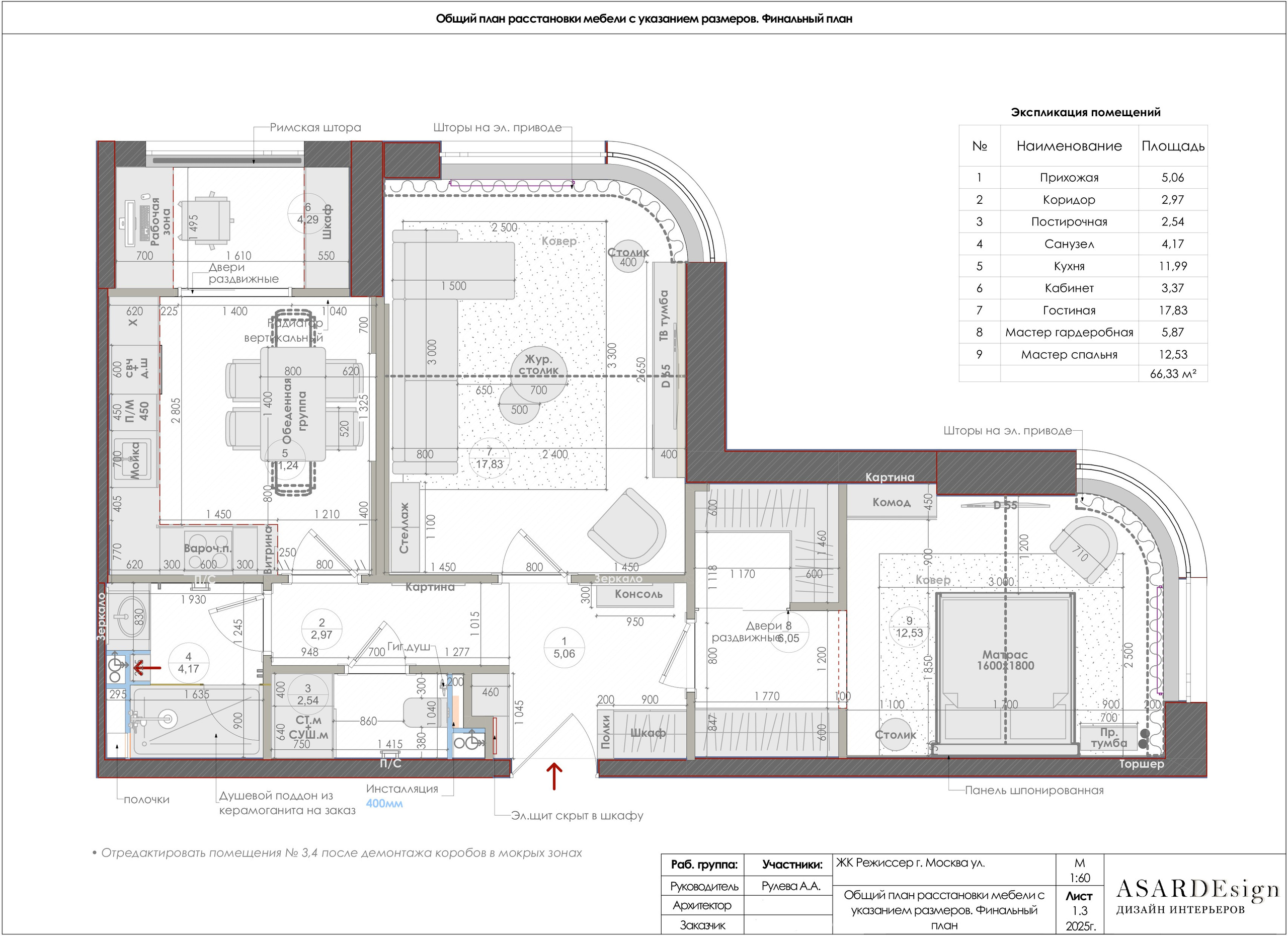
Эта стильная квартира, площадью 70 м², спроектирована для молодого мужчины, ценящего комфорт, эстетику и функциональность. Интерьер сочетает в себе лаконичность современных решений и уютную атмосферу для повседневной жизни.
Планировка была тщательно проработана с учетом эргономики и сценариев проживания, обеспечивая максимальное удобство и приватность.












































